0 100
8 861 298 53 53
Назад

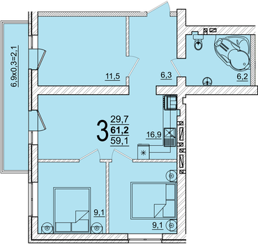
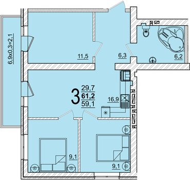
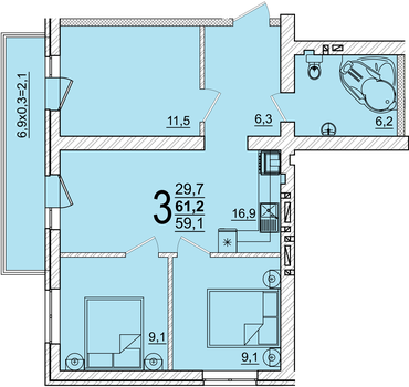
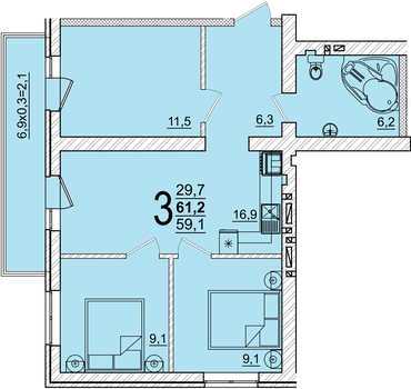
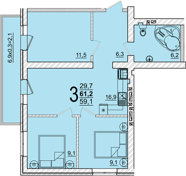
3-комнатная, 61.2 м²

Новая Адыгея, Тургеневское шоссе, 33/1

  • Проект

    ЖК Дарград
  • Сдача

    3 кв. 2023
  • Литер

    38
  • Подъезд

    2
  • Этаж

    4
  • Жилая площадь

    29.7 м²
  • Кухня

    16.9 м²
  • Площадь балкона

    2.1 м²

8 763 760 ₽ 143 199 ₽/м²

Цена по запросу

  • bank
  • bank
  • bank
  • bank
  • bank

В ипотекуот 34 836 ₽/мес

Показать 5 программ

Похожие квартиры

Недавно просмотренные

Константин, ваша заявка принята!

Мы скоро свяжемся с вами.