0 100
8 861 298 53 53
Назад

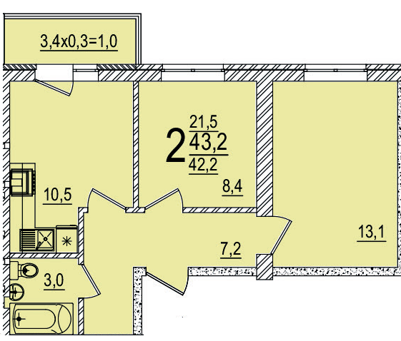
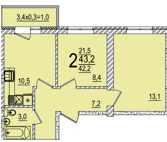
2-комнатная, 40.7 м²

Новая Адыгея, Тургеневское шоссе, 33/1

  • Проект

    ЖК Дарград
  • Сдача

    2 кв. 2023
  • Литер

    35
  • Подъезд

    1
  • Этаж

    4
  • Жилая площадь

    22.4 м²
  • Кухня

    7.2 м²
  • Площадь балкона

    1.9 м²

6 261 750 ₽ 153 851 ₽/м²

Цена по запросу

  • bank
  • bank
  • bank
  • bank
  • bank

В ипотекуот 24 890 ₽/мес

Показать 5 программ

Недавно просмотренные

Константин, ваша заявка принята!

Мы скоро свяжемся с вами.